Technical article in PBSI – Panel Buidling & System Integration (03-2026)
Control cabinet engineering is one of the most demanding disciplines in electrical design. Planning, layout, wiring, labeling, and documentation are tightly interlinked. The use of artificial intelligence now creates, for the first time, the opportunity to integrate the entire process chain systematically.
In addition, manufacturing data must be generated for wires, wire harnesses, mounting plates, and enclosures. In practice, these tasks are often handled in separate steps – sometimes using different tools, sometimes manually. Discontinuities between systems, redundant data entry, and individual design interpretations increase effort and make the overall process more error-prone.
The objective is not full automation of electrical engineering, but a new form of collaboration between software and engineering expertise. Repetitive routine tasks are automated, while the engineer retains control over structure, quality, and technical validation. The AI-generated control cabinet thus represents a clear paradigm shift away from isolated, sequential tasks, and toward a continuous, data-driven workflow.
The digital schematic as the starting point
The starting point of the AI-supported workflow is the digital electrical schematic. It represents the logical structure of a system and contains all relevant information on components, electrical connections and functional relationships. Unlike traditional CAE approaches, this information does not stop at the schematic level. AI analyzes the schematic as an integrated system, correlating components, connections and functions. It identifies structures, repetitions and typical design patterns.
Based on this analysis, the logical circuit diagram is translated into a physical control cabinet layout. The required expertise is derived from the engineering logic embedded in the system, as well as from existing project data. AI considers not only the space requirements of individual components, but also standard arrangement principles, wiring relationships, thermal constraints, and assembly and maintenance aspects. Functions are logically grouped, wiring paths are optimized, and available installation space is used efficiently. Within a short time, a consistent control cabinet layout is created that serves as a reliable basis for further planning.
All required downstream manufacturing documents are generated automatically. These include terminal diagrams, bills of materials, and production data for wires, wire harnesses, mounting plates, and enclosures. The data can be transferred directly to NC machines, forming the foundation for a largely automated manufacturing process.
Control cabinet engineering is one of the most demanding disciplines in electrical design. Planning, layout, wiring, labeling, and documentation are tightly interlinked.
Intelligent integration of existing documents
Another core element of the AI-based approach is the integration of existing documentation. Scanned paper drawings, PDF files, or DWG documents can be converted into digital schematics. AI supports the recognition of structures and the transformation of content into a logically connected model. The result is intelligent documentation with cross-references and navigable structures.
This information becomes part of a central model that functions as a digital twin of the control cabinet. It contains all relevant geometric, functional and documentation data, and accompanies the control cabinet throughout its entire life cycle – from engineering and manufacturing to operation and maintenance.
New features in ELECTRIX AI 2026
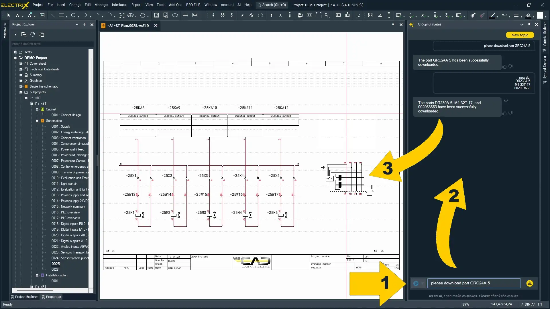
With ELECTRIX AI 2026, WSCAD is extending this approach with a wide range of new AI-supported functions specifically designed for everyday engineering tasks. Path macros, for example, can be placed multiple times by instructing the AI copilot to insert a specific macro repeatedly. The software executes the instruction correctly within the schematic (Figure 1). Components can also be loaded directly from the online library via the AI copilot, and placed immediately (Figure 2), eliminating time-consuming search and import processes.
A new feature is the ‘AI Knowledge’ area. Company-specific documents such as customer standards, manufacturer approvals or terminal labeling rules, can be stored here. The AI copilot accesses this knowledge base and delivers the relevant information on request within seconds (Figure 3), making manual searches through folder structures or PDF documents unnecessary.
AI-based control cabinet layouts
A further development step is represented by AI-based control cabinet layouts. In an initial phase, the software focuses on repetitive routine tasks. It is trained to recognize similarities and to derive different layout variants from the schematic. The engineer selects one of the proposed variants, after which the automatic cabinet layout process begins. The result is then reviewed by the engineer and adjusted if necessary.
In a test case, an existing control cabinet layout was reproduced from the schematic within just a few minutes. Apart from minor deviations, the AI-generated layout was nearly identical to the original (Figure 4). After the review is completed, all downstream outputs – such as terminal diagrams, bills of materials, and manufacturing data – are immediately available.
Another core element of the AI-based approach is the integration of existing documentation. Scanned paper drawings, PDF files, or DWG documents can be converted into digital schematics.
The role of the electrical engineer in an AI-supported process
As individual planning steps become increasingly automated, the role of the electrical engineer is evolving accordingly. Instead of performing repetitive manual tasks, the focus shifts toward orchestration, evaluation, and quality assurance. AI provides proposals, variants, and automated derivations – the final decision remains with the human expert.
This interaction is particularly critical in control cabinet engineering. Standards, customer-specific requirements, operational experience, and aspects such as serviceability or maintainability cannot be fully formalized. The engineer reviews AI-generated results, makes targeted adjustments, and ensures compliance with technical, regulatory and economic requirements. In this context, the software acts as an assistance system that saves time and reduces errors without replacing engineering expertise.
A key prerequisite for this approach is a consistent, end-to-end data model. All information – from the electrical schematic to the control cabinet layout, manufacturing data, and documentation – accesses the same project data. Changes are applied consistently and become immediately available to all disciplines involved. Disruptions between systems and redundant data management are eliminated.
This concept unifies the traditional domains of electrical engineering on a single platform: electrical design, fluid power engineering, pneumatics, building automation, control cabinet engineering, and electrical installation. AI is not introduced as an isolated feature, but embedded along this continuous structure. This is what differentiates the approach from isolated automation tools, and forms the basis for scalable, practice-oriented AI applications in engineering.
Standards, customer-specific requirements, operational experience, and aspects such as serviceability or maintainability, cannot be fully formalised.
Multilingual documentation powered by AI
Another new AI capability is the automatic translation of text content, up to and including complete project documentation. The user specifies the target language, and the software translates the content automatically while taking established technical terminology into account (Figure 5). Tasks that previously required external translation agencies, and took hours or days, can now be completed in just a few minutes.
Enhancements in building automation
Functions in the ‘Building Automation’ domain have also been expanded. In addition to the newly added “Bundeswehr” standard, users can now define and manage additional custom standards, including their associated function lists. This makes the system adaptable to a wide range of application areas and regulatory environments.
AI-supported control cabinet engineering is not about replacing the electrical engineer, but about redefining the division of labor. The software takes over structured, data-intensive tasks and ensures consistency across all process steps.
Conclusion: AI as a structuring element
AI-supported control cabinet engineering is not about replacing the electrical engineer, but about redefining the division of labor. The software takes over structured, data-intensive tasks and ensures consistency across all process steps. The engineer retains responsibility for system design, evaluation, and quality assurance.
The decisive factor is a continuous, shared data foundation. It connects the various disciplines of electrical engineering, and creates the conditions under which AI can deliver tangible value. As a result, control cabinet engineering becomes not only more efficient, but also more resilient in the face of skilled labor shortages and increasing system complexity.
This article is intended for your personal use only. Reproduction or publication requires the express written consent of the publisher.





